
2* RD Strunkovice
Klient
soukromý investor
Projekt
2020 - 2021
Realizace
2021 - 2022
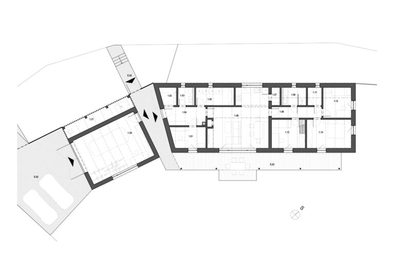
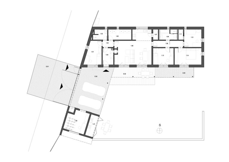
Návrh 2 RD pro mladé rodiny respektující tradiční formu zástavby – podlouhlá stavba se sedlovou střechou z pálené krytiny s moderními detaily a současnou dispozicí. Domy samotné tvoří uliční čáru a hranici samotných pozemků.





















