
Obytná zóna v Hradci u Stoda
Klient
Obec Hradec
Generální projektant
Sladký&Partners s.r.o.
Projekt
2015
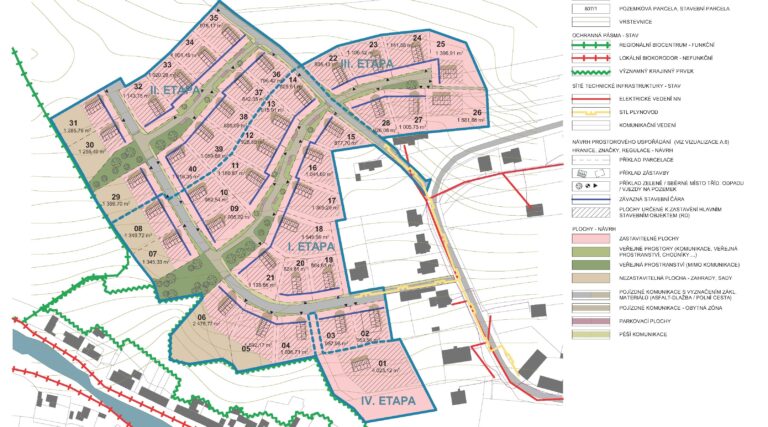
Územní studie významné a atraktivně orientované rozvojové plochy Hradce u Stoda.

Územní studie významné a atraktivně orientované rozvojové plochy Hradce u Stoda.