Přeskočit na hlavní obsah
VAS
HLEDAT
Hledat
×
VAS
ARCHITEKTURA
VŠE
občanská vybavenost
bytové domy
rodinné domy
drobná architektura
interiéry a expozice
soutěže
URBANISMUS
VŠE
územní plány
regulační plány
územní studie
veřejný prostor
Autoři
Kontakt
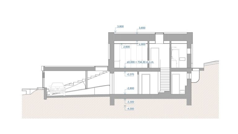
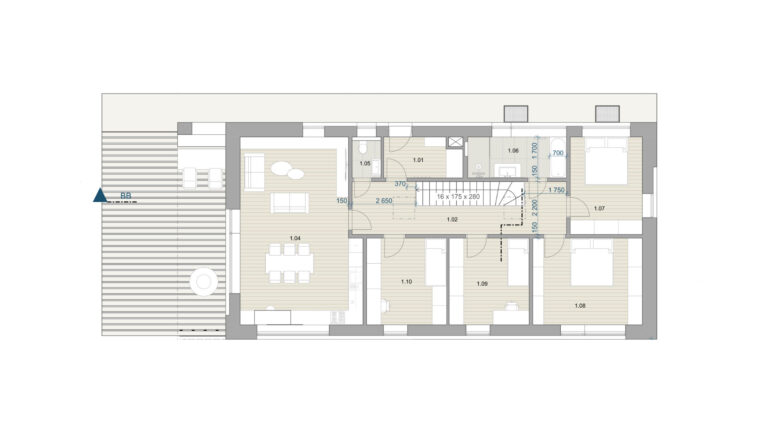
Rodinný dům Sedlec
Klient
soukromá osoba
Projekt
2020
Realizace
2021-22
Návrh novostavby domu v rekreační zástavbě s panoramatickým výhledem na hrad Radyně.
číst více
Autoři
Ing. arch. Ondřej Bláha
Ing. arch. Ing. Markéta Míšková
DALŠÍ projekty
Sportovní areál Chodov u Sokolova
KOUPALIŠTĚ V HORŠOVSKÉM TÝNĚ
Obnova sídliště v Holoubkově
Obytná zóna v Hradci u Stoda
Vintířova stezka
Bytový dům Dukelská
Dům U Jelena
Rozšíření základní školy v Horšovském Týně
Územní studie Benešov „Nad Mariánovicemi“
Rodinný domek „Kurník“ Radošovice
Apartmánový dům „Na rotě“ Kvilda
Dálková cyklotrasa č.3