
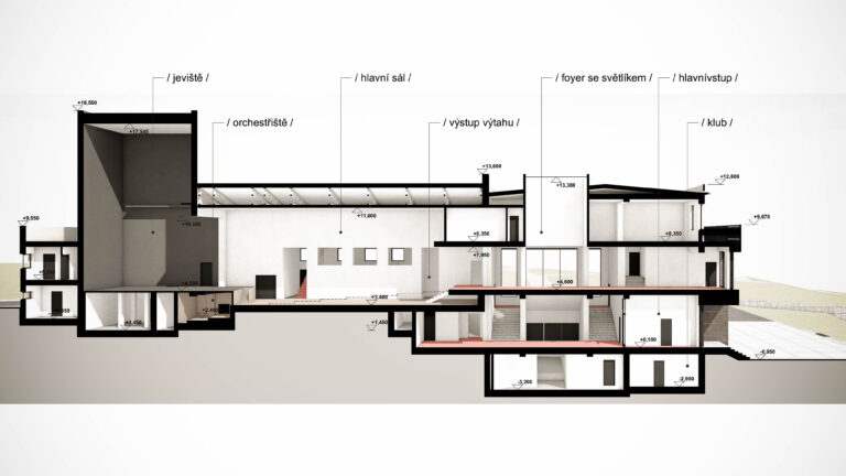
Dům kultury Strakonice
Důmyslná a velkorysá stavba Domu kultury ve Strakonicích v duchu odeznívajícího socialistického realizmu z roku 1958 je dílem Státního projektového ústavu pro výstavbu měst a vesnic České Budějovice.
Jmenovitě architektů: Josefa Vítů (1909 – 1979) a Jaroslava Škardy (1923 – 1993).
Motto:
Cílem je při zachování hlavní funkce „vzájemného potkávání a bavení lidí z různých důvodů a různou formou“ poskytnout potřebné vybavení, technické zázemí i potřebný sortiment služeb pro multifunkční využívání…
Principy návrhu:
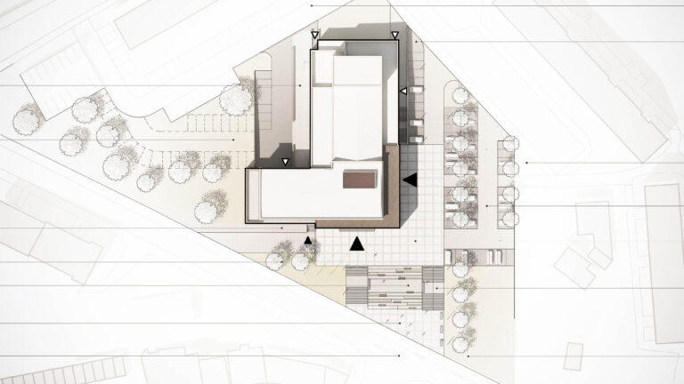
Uceleně a komplexně řešit objekt i jeho nejbližšího okolí…
Ctít původní charakter objektu, ponechat současný objem a maximálně využít kapacitní rezervy…
Navýšit kapacity diváků a rozšířit uživatelský program…
Etapovitostí a logistikou realizace úprav minimálně omezit provoz a zajistit rozumné financování…
Rozdělit objekt na samostatné fungující celky a zajistitit propojitelnost i oddělitelnost provozů…
Posunout technický a uživatelský standard na dnešní požadavky komfortu…
Interiéry a grafika:
V uceleném řešení interiérů a grafiky se snažíme propojit dobu vzniku objektu s dobou vzniku legendárního a celosvětově známého skútru Čezeta. Paralely se nabízejí zejména v designu, barevnosti i použitých materiálech.


















