
Rozšíření základní školy ve Stodu
Klient
Město Stod
Generální projektant
Ateliér KROK s.r.o.
Projekt
2015-2018
Realizace
2019-2021
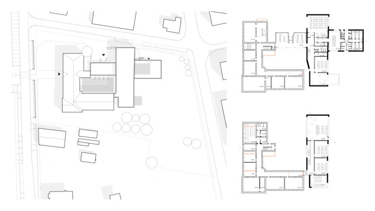
Projekt rozšíření základní školy ve Stodu vznikal postupně v několika krocích od analýzy problémů a koncepce rozvoje všech školních budov ve městě, přes návrh dostavby nového pavilonu ke stávajícímu historickému modernistického objektu až po prováděcí dokumentaci zpracovanou dle podmínek dotačního titulu MŠMT. Rozšíření spočívá v dostavbě nového vstupního traktu se šatnami, pavilonu s jídelnou a učebnami a varny. Forma reaguje zejména na dominantní postavení původní stavby, vyrovnává se se svažitým terénem a situačně reaguje na moderní požadavky provozu školy (dopravní obsluha, propojení se zahradou).
Autoři
spolupráce
Ing. arch. Kateřina Šimečková












