
Sportovní areál Sladovka v Benešově
Klient
Město Benešov
Projekt
2020
Realizace
2021
Náklady
49,5 mil. Kč
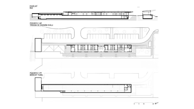
Běžecký atletický tunel se zázemím
Další stavba areálu postavená podle Generelu území (ateliér VAS, 2019) navázala na stavbu atletického oválu. Ten doplnila o zázemí oddílu benešovských atletů umístěné v tribuně na západní straně oválu. Kromě šaten a provozního zázemí oddílu jsou zde prostory umožňující pořádání závodů, zázemí pro veřejnost a další sportovní oddíly a kluby, které budou spolu s atlety využívat běžecký tunel umístěný v 1.PP pod tribunou. Tunel nabízí čtyři dráhy délky 60 metrů, stavební délka tunelu je 85 metrů.
Mezi tribunou a Zimním stadionem vznikl veřejný prostor areálu s parkovacími plochami zapojenými do stávající zeleně.
Autoři
spolupráce
Ing. Tomáš Tourek












