
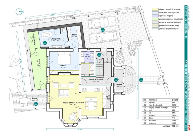
Rodinný dům v Roztokách
Klient
soukromá osoba
Generální projektant
S&P s.r.o.
Projekt
2013
Realizace
2014
Náklady
neuveřejněny
Zadání = Oxymoron = Výrazně zvětšit obytnou část + Zachovat retro vzhled
Autoři
spolupráce
Stavba Tresa s.r.o.

Zadání = Oxymoron = Výrazně zvětšit obytnou část + Zachovat retro vzhled
Stavba Tresa s.r.o.