
Studie využitelnosti pozemku v Praze
Klient
soukromá osoba
Projekt
2012
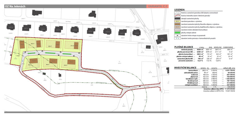
Prověřovací studie využitelnosti několika pozemků v majetku investora zaměřená na možnosti rozvoje individuálního bydlení s možností využití společného komunitního zázemí. Součásti studie je bilance vzniklých ploch a odhad investičních nákladů na realizaci umožňující zadavateli dobře nastavit ekonomiku záměru.



