
Rodinný domek „Kurník“ Radošovice
Klient
soukromá osoba
Projekt
2006 - 2007
Realizace
2007 - 2012
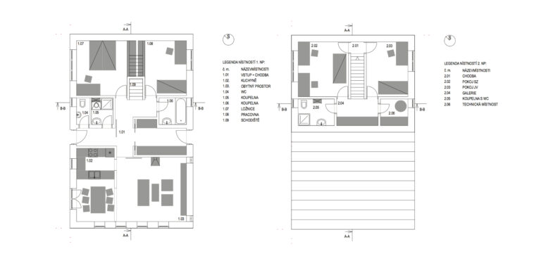
Malý rodinný dům pro mladou pětičlennou rodinu nedaleko od Strakonic v blízkosti řeky Volyňky.
Autoři
spolupráce
Ing. arch. Petra Samková

Malý rodinný dům pro mladou pětičlennou rodinu nedaleko od Strakonic v blízkosti řeky Volyňky.
Ing. arch. Petra Samková