
Sokolovna ve Staňkově
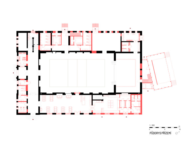
Citlivá obnova sokolovny ve Staňkově zachovává její původní charakter a zlepšuje funkčnost areálu. Klíčovým prvkem je reprezentativní předprostor, jenž vrací budově důstojný vstup a částečně obnovuje historický vzhled.
Prostor před sokolovnou minimalizuje vizuální dominanci aut – parkoviště je upozaděno, vjezd omezen na zásobování a údržbu, řešen formou pojízdné dlažby.
Součástí úprav je rozšíření restaurace s odpovídajícím zázemím a venkovní zahrádka mezi stromy. Místo klasické terasy vznikne výdejní okénko, což zachová otevřenost prostoru. Samostatný vstup do šaten a WC umožní jejich využití při venkovních akcích bez nutnosti vstupu do hlavní budovy.
Koncept spojuje úctu k historii s moderním přístupem k veřejnému prostoru. Sokolovna nabídne lepší zázemí pro komunitní i sportovní život a přirozeně zapadne do městského prostředí.














