
Rodinný dům ve Starém Plzenci
Klient
soukromá osoba
Projekt
2015
Realizace
plánováno 2017
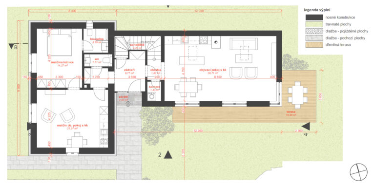
Návrh celkové rekonstrukce a přístavby domu v rostlé městské zástavbě na třígenerační bydlení v kontaktu se zahradou.

Návrh celkové rekonstrukce a přístavby domu v rostlé městské zástavbě na třígenerační bydlení v kontaktu se zahradou.